Курсовая работа по предмету "Металлические конструкции" на тему:
"Расчёт балочной клетки".
Курсовая работа выполняется по предмету "Металлические конструкции".
Курсовая работа состоит из графической части и пояснительной записки. Вариант задания берётся из методички, или индивидуально выдаётся преподавателем.
Срок выполнения курсовой работы составляет от 5 до 10 дней.
Стоимость курсовой работы составляет 3500 руб.
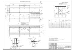
Стандартный состав графической части проекта:
- Компоновка балочной клетки;
- Главная балка;
- Колонна;
- Вертикальные связи;
Состав пояснительной записки:
- Компоновка балочной клетки;
- Расчёт и конструирование главной балки;
- Расчёт и конструирование колонны;
- Расчёт и конструирование вертикальных связей;
- Библиографический список.
Для студентов ВлГУ курсовая работа выполняется по этой методичке:
Metodichka_bal_kletka.pdf
Дополнительная литература:
Пример задания на курсовой проект





